



























Publications:
Ještěd f kleci
ERA21
Archiweb¨
EARCH
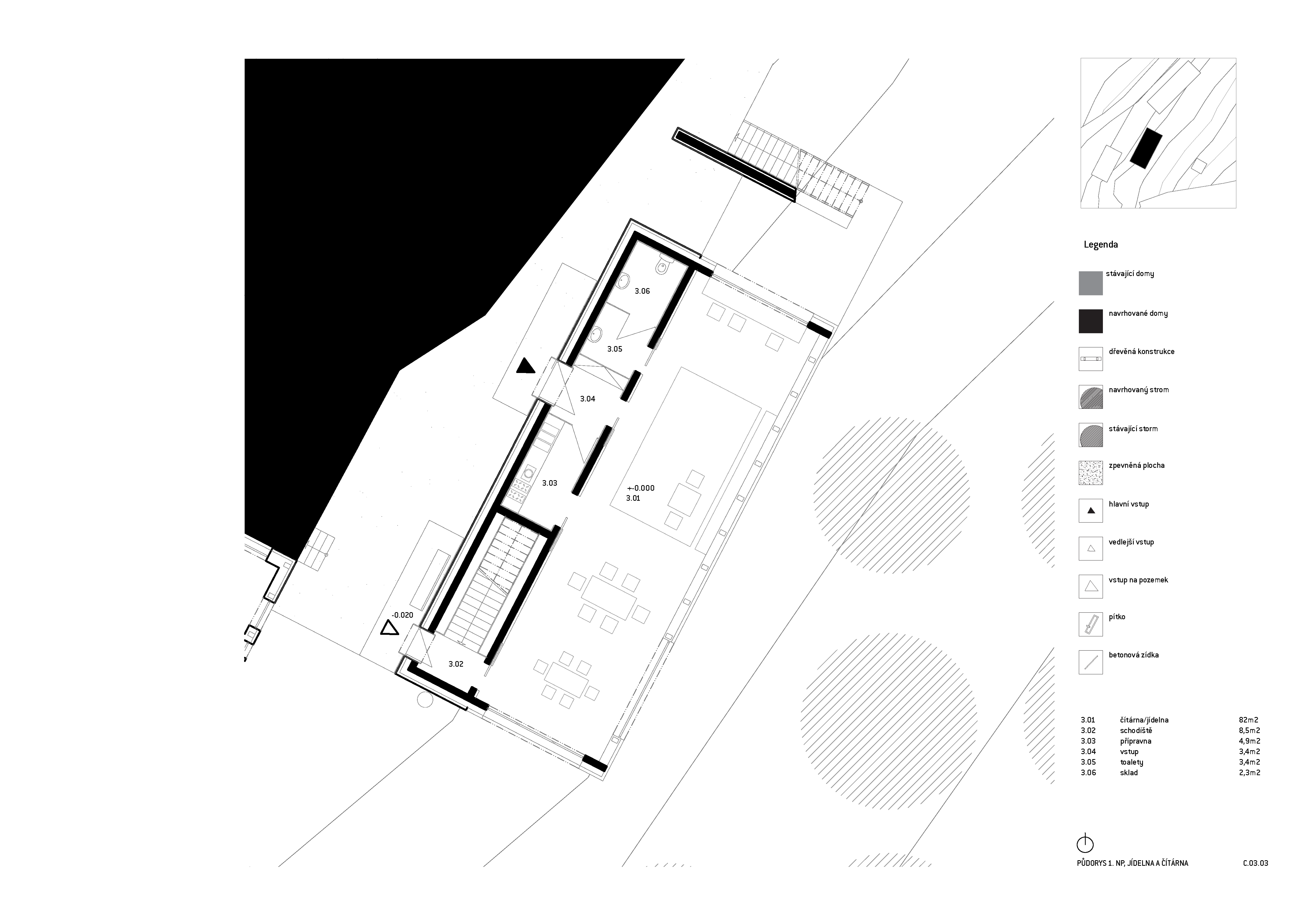
Rádlo is a typical suburban village with a close connection to Liberec and Jablonec. Due to its mountains, the village is linear and there is one main road going through the whole village. At the center of the road is my site. I am creating a square defined by three public buildings: a daily stacionary for elderly people, kindergarten and a public hall.
The building are coresponding with the traditional mountain architecture, when there is always one stable part of the building made by stone that created the center of the house.
The construction follows this principle, its only transfered to a linear form which is followed by the other part made of wood.
The houses are still traditional, but also modern. The functions opf tthe buildings are for now stable, coming from the actual needs of the village, but can be easily transformed into something else.
The square is defined by these three buildings, by a tree, local water pump and a road. The square is one of the most important part of the project. Its surface should be considered as one of the bases. It should be understood as another living space, that intersects all the surrounded function.
These functions are defined from an analysis of the actual needs of the village. The number of inhabitants is rapidly increasing.