Rampart that devides, but connects
Branik is a quater outside of the city center in Prague. With the public transport its easy to reach the center in about 15 minutes.
It used to be an old village before it became part of Prague.
The site takes place on the mail Branik road, where all the public facilities are.
The most frequented public place is the main street and the former brewery takes place right in the middle.
Nowadays, the brewery, which also used to be a closter is abandoned.
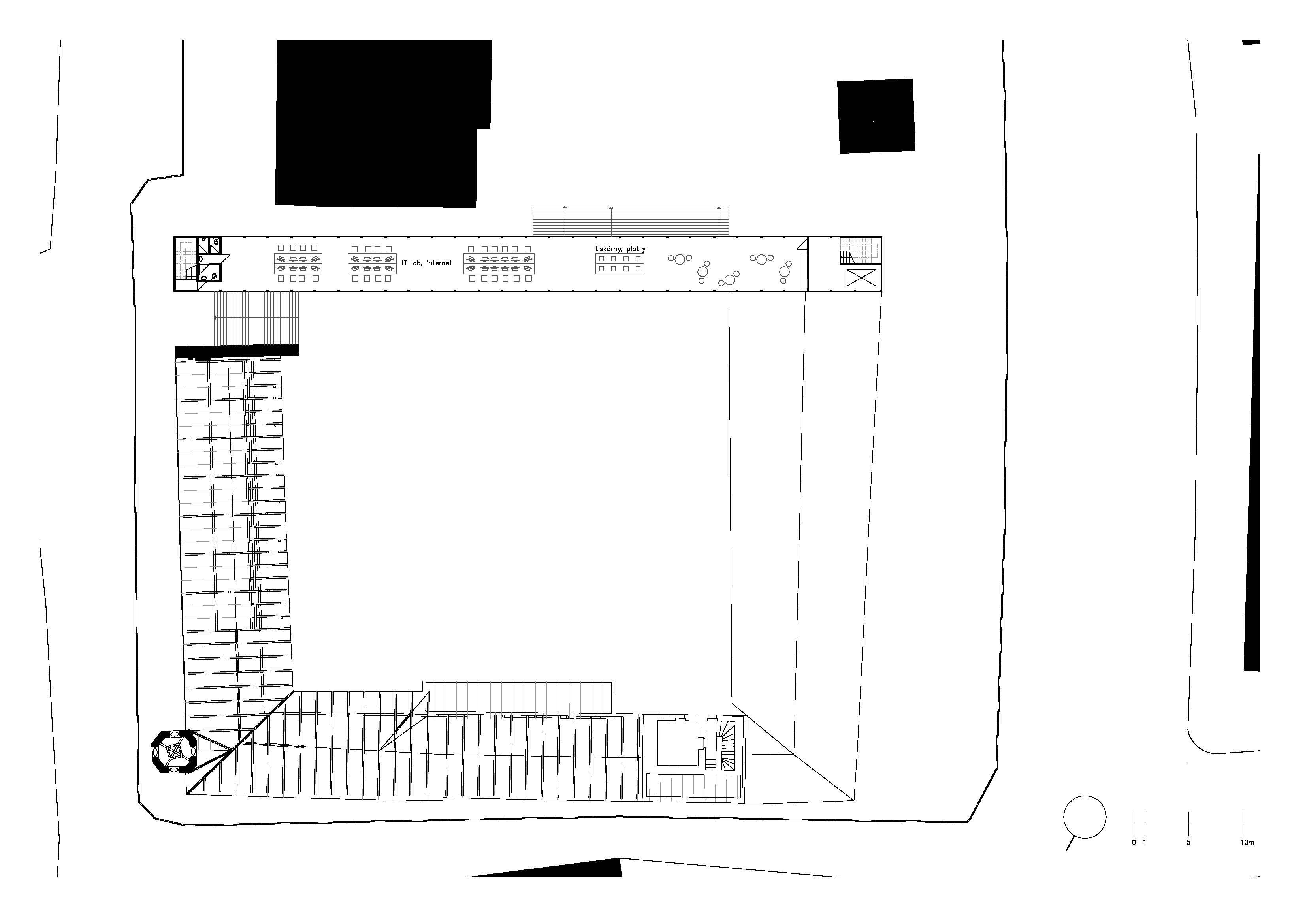
The concept of the project was to create a new public place, which would be open for everyone who lives in Branik and also to create a place, which would offer some other activity than just gathering.
The closter used to be formed by four wings, but in the 50s, during the socialist era, they put one of the wings down and build a big prefabricated house.
I decided to close the old structure again, but in the way that it actually connects the two places between one and other.
The form is rigid, to not attract more attention than needed. The facade is made of OKA LUX, which should be lucid and clear.












