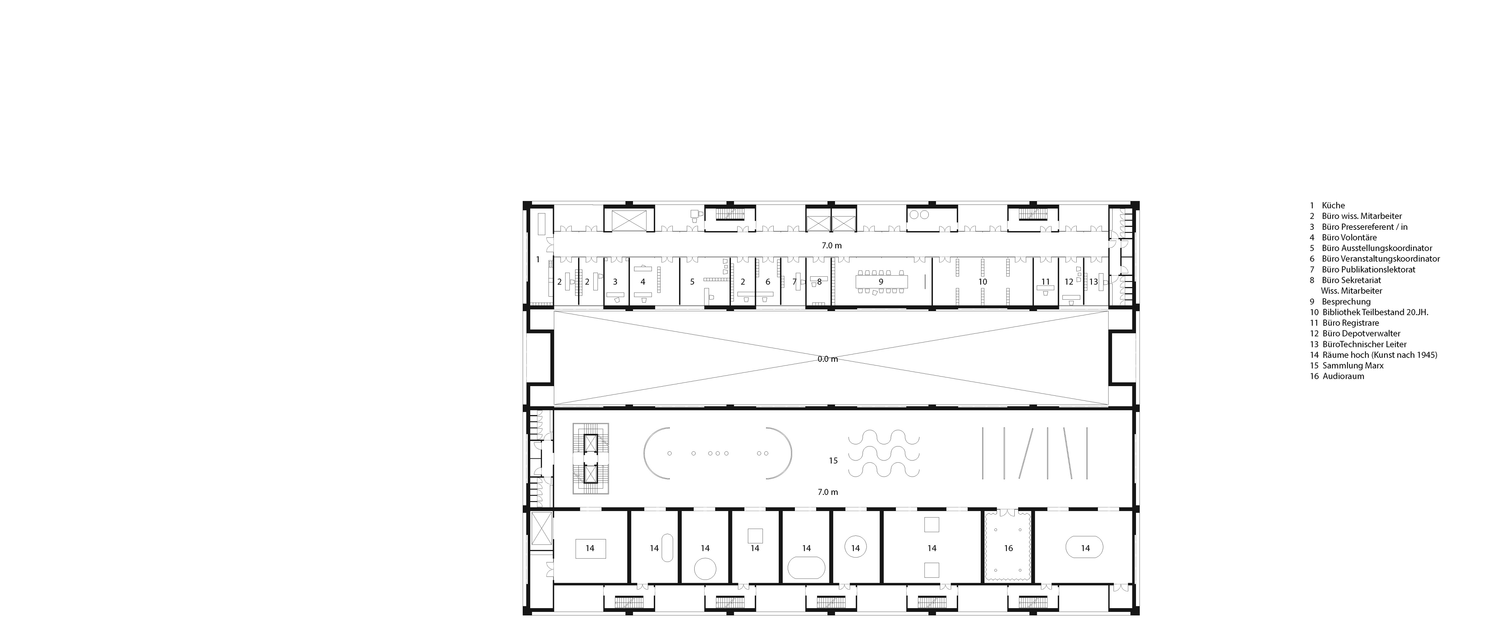
MUSEUM, BERLIN, GERMANY - 2016 DESIGN TEAM: 2A+P/A
Our proposal for the Museum of XXth century is to imagine the new structure as a palazzo: an archetypal architectural form that is applied here with the aim of bringing the very role of the museum, from spectacular urban event to active component of the city. What this project aims to investigate is the meaning behind a Museum of XXth century. A museum that implicitly looks at the past, and specifically that of Berlin: a city that represented a new paradigm of the modern urban condition in the historical period considered in the museum program.

collab 2A+P

    scheibova@gmail.com /  +420 737 243 517